Attraktive Bürofläche im Ortskern von Ergoldsbach – voll vermietet

84061 Ergoldsbach, Bürohaus zum Kauf

Attraktive Bürofläche im Ortskern von Ergoldsbach – voll vermietet

84061 Ergoldsbach, Bürohaus zum Kauf

Kontaktdaten

Objektdaten

  • Objekt-ID
    2026-223
  • Objekttypen
    Büro/Praxis, Bürohaus
  • Adresse
    84061 Ergoldsbach
  • Etagen im Haus
    2
  • Bürofläche ca.
    143 m²
  • Heizungsart
    Zentralheizung
  • Wesentlicher Energieträger
    Öl
  • Baujahr
    1967
  • Zustand
    gepflegt
  • Ausstattung
    Standard
  • Stellplätze gesamt
    5
  • Käufer­provision
    3,57 %inkl. MwSt
  • Kaufpreis
    260.000 EUR

Ausstattung / Merkmale

  • ✓ Keller

Energieausweis

  • Energieausweistyp
    Bedarfs­ausweis
  • Ausstellungsdatum
    nach dem 1.5.2014
  • Baujahr lt. Energieausweis
    1967
  • Primärenergieträger
    Öl
  • Endenergie­bedarf
    300,80 kWh/(m²·a)
  • Endenergie­bedarf Strom
    31,00 kWh/(m²·a)
  • Endenergie­bedarf Wärme
    223,00 kWh/(m²·a)
0 25 50 75 100 125 150 175 200 225 250+ H G F E D C B A A+ H G F E D C B A A+ Endenergiebedarf Strom 31,00 kWh/(m²·a) Endenergiebedarf Wärme 223,00 kWh/(m²·a)

Objekt­beschreibung

Beschreibung

Zum Verkauf steht eine gepflegte und langfristig interessante Büroimmobilie in zentraler Lage von Ergoldsbach, direkt im Ortskern. Das Objekt bietet eine Nutzfläche von ca. 127 m² und überzeugt durch eine solide Bauweise, eine durchdachte Aufteilung sowie eine gute Vermietbarkeit.

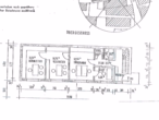
Das Gebäude wurde im Jahr 1967 errichtet und im Jahr 1987 generalsaniert. Eine weitere wichtige Modernisierungsmaßnahme erfolgte 1995 mit der Dacherneuerung. Im Jahr 2018 wurden zudem neue Fenster eingebaut. Die Bürofläche erstreckt sich über zwei Vollgeschosse und verfügt über insgesamt 6 Büroräume, wodurch vielseitige Nutzungsmöglichkeiten gegeben sind. Das Gebäude ist zudem voll unterkellert und bietet damit zusätzliche Nutz- und Lagerflächen. Beheizt wird die Immobilie über eine Ölzentralheizung. Besonders attraktiv für Mitarbeiter und Mandanten sind die 5 Stellplätze direkt vor dem Gebäude.

Die Immobilie ist derzeit an eine Steuerkanzlei vermietet und eignet sich damit ideal als Kapitalanlage mit bestehendem Mietverhältnis.

Ausstattung

Eckdaten:

– Objektart: Bürofläche / Bürogebäude
– Standort: Ergoldsbach, direkt im Ortskern
– Nutzfläche: ca. 127 m²
– Grundstücksfläche: ca. 216 m²
– Baujahr: 1967
– Generalsanierung: 1987
– Dach erneuert: 1995
– Fenster erneuert: 2018
– Etagen: 2 Vollgeschosse
– Räume: 6 Büros
– Keller: voll unterkellert
– Heizung: Ölzentralheizung
– Stellplätze: 5 Außenstellplätze direkt vor dem Gebäude
– Vermietung: vermietet an eine Steuerkanzlei

Sonstiges

Diese Büroimmobilie in Ergoldsbach stellt eine interessante Gelegenheit für Kapitalanleger dar, die Wert auf einen soliden Standort, eine bestehende Vermietung und eine nachhaltig nutzbare Gewerbeimmobilie legen.

Lage

Die Immobilie befindet sich in Ergoldsbach in zentraler Ortskernlage. Durch die gute Erreichbarkeit und die vorhandenen Stellplätze bietet der Standort ideale Voraussetzungen für eine gewerbliche Nutzung. Einrichtungen des täglichen Bedarfs sowie weitere Dienstleister befinden sich im direkten Umfeld.

Die dargestellte Position der Immobilie ist nur eine ungefähre Angabe.

Direktanfrage

* Pflichtangaben
 SSL-verschlüsselt

Wir sind gerne für Sie da

Professionelle Begleitung bei Kauf, Verkauf und Bewertung – für Ihre Immobilie in besten Händen